為什么要做樓地面保溫隔聲?
首先,保溫和隔聲是兩碼事。關于保溫這主要是全國層面和各個省份對建筑節能要求的不斷提高而提出的,特別是居住建筑節能設計標準的要求;關于隔聲這主要是《民用建筑隔聲設計規范》GB 50118和《綠色建筑評價標準》GB/T50378具體要求的,特別是現在國家層面和各個省份都在大力推廣綠色建筑,其綠色建筑評價環節樓地面的隔聲問題是評分項。

二、樓地面保溫隔聲有哪些選材?
(1)全輕混凝土
(2)無機保溫砂漿,比如銀通的松銤維鉑樓地面保溫隔聲材料
(3)擠塑聚苯板
(4)石墨聚苯板
(5)卷材類(隔聲墊)
(6)其他類(如隔音涂料)等
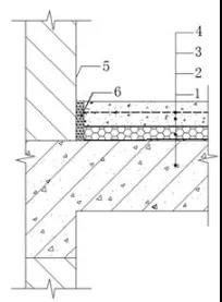
三、樓地面保溫隔聲基本構造

(常規基本構造為由下往上依次:鋼筋混凝土樓板+保溫隔聲材料+網片+細石混凝土保護層以及豎向隔聲片(切斷聲橋))




